MAHKAM ARCHITECTS
MAHKAM ARCHITECTS - Arxitektura kompaniyasi
0   /   100
keyboard_arrow_up
keyboard_arrow_down
keyboard_arrow_left
keyboard_arrow_right

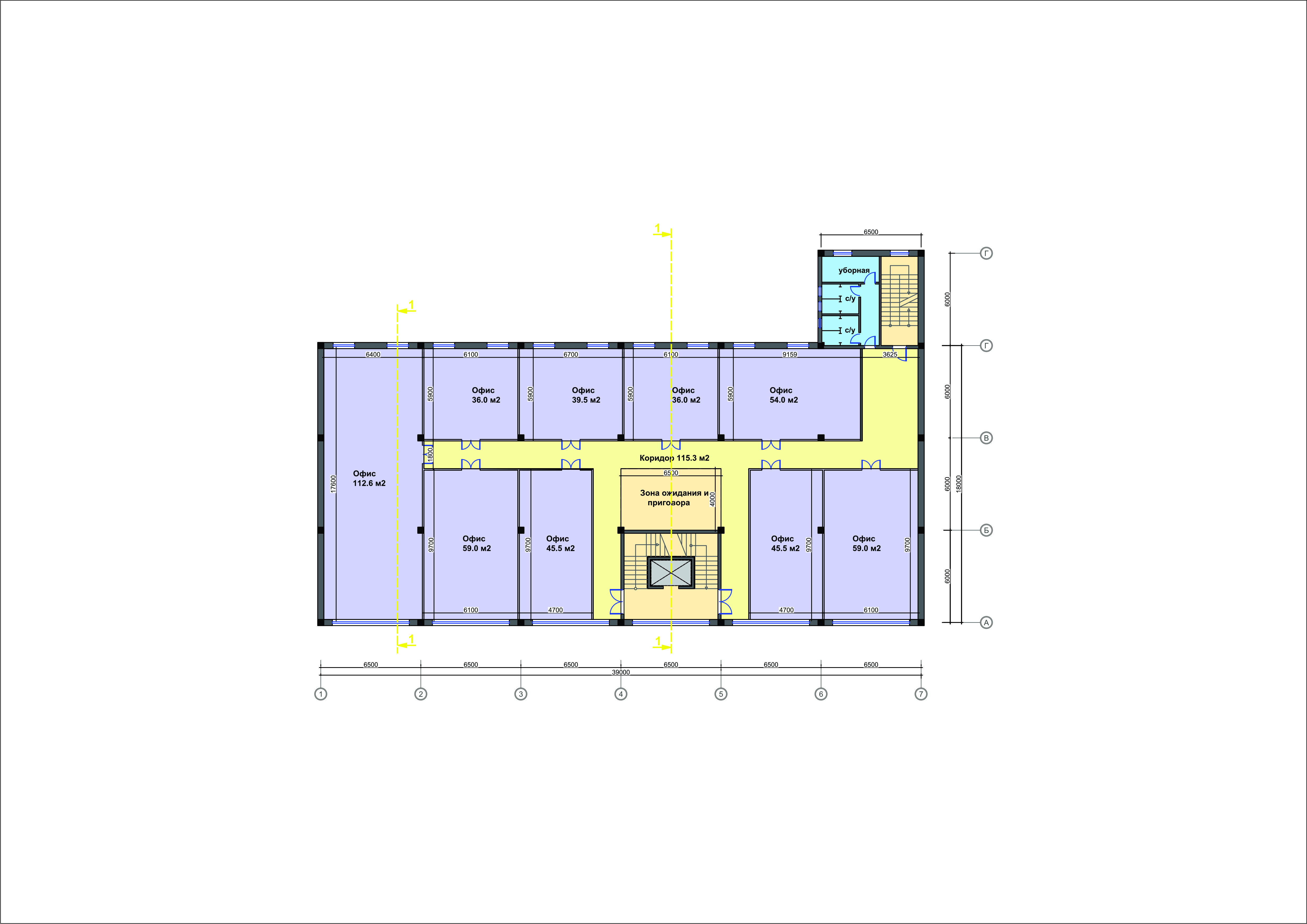
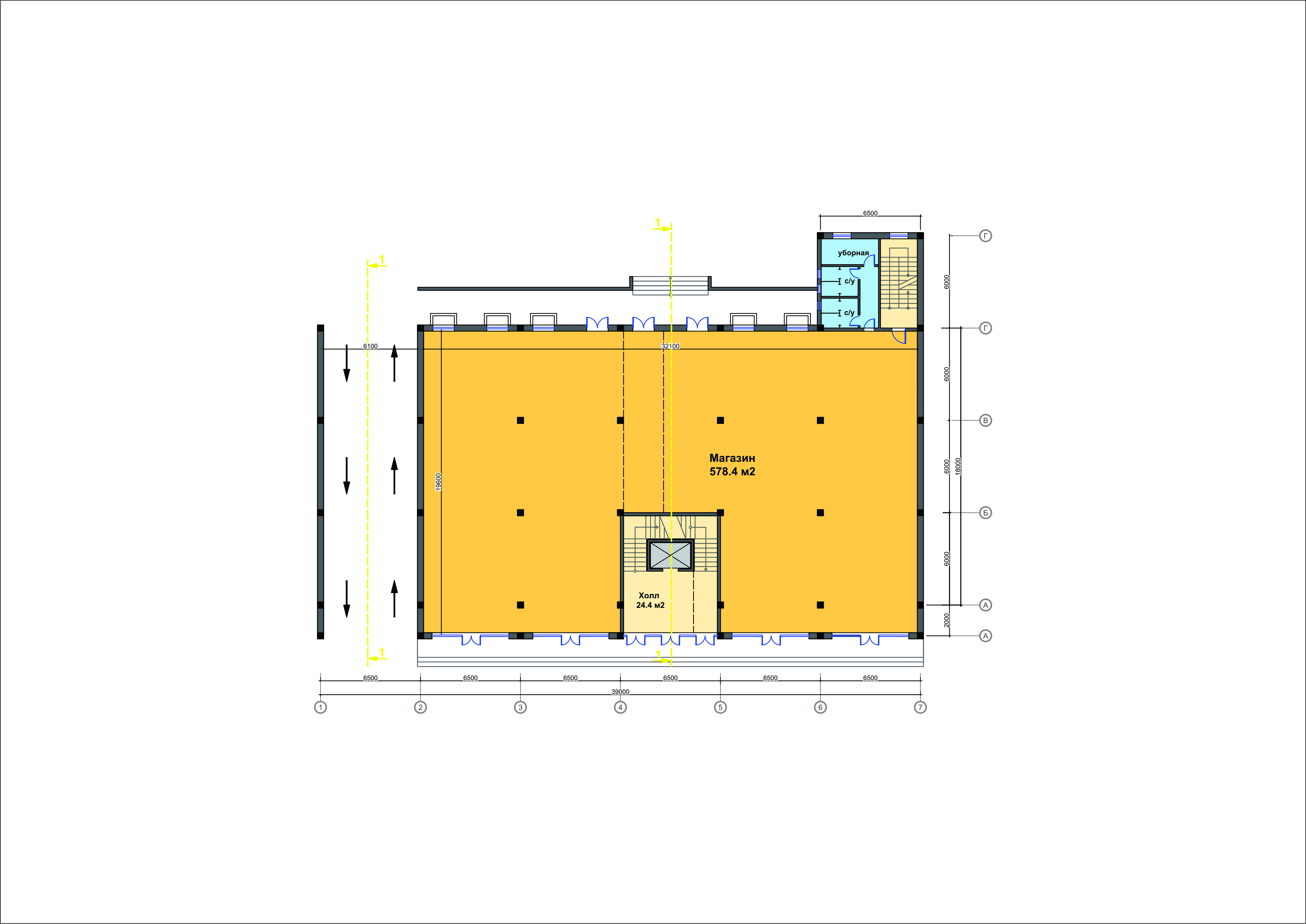
Planshet Biznes markazi TTZ 2023

Loyiha haqida

Planshet biznes markazi uchun arxitektura loyihalash. Loyiha Toshkent shahri Mirzo-Ulug'bek tumanida joylashgan. 2023 yil loyihasi. MAHKAM ARCHITECTS kompaniyasining professional arxitektura loyihalash va dizayn xizmatlari.
Loyiha turi: Savdo binolari
Yil: 2023
Holat: Yakunlangan
Loyiha narxi: 310 000 000 so'm (2023)

Narx maydon, murakkablik va materiallarga bog'liq.

Joriy narxni maslahatda aniqlang.

Shunday loyiha xohlaysizmi?

Ariza qoldiring va biz siz bilan bog'lanamiz